Property Detail

1031 Pebble Beach

Upland CA 91784

$778,000

Status: Active

Property Details

Description

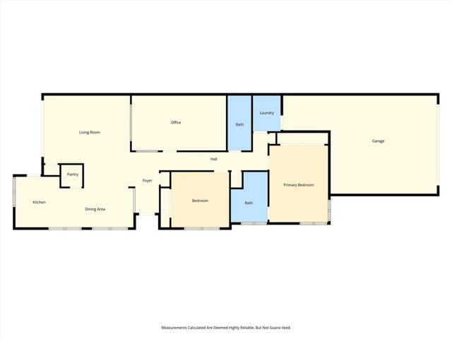
Stunning Golf Course Home at Upland Hills Country Club. Beautifully remodeled approximately seven years ago by a custom home builder, this exceptional residence blends modern style with warm, open-concept living. Situated in a prime location within Upland Hills Country Club, the home enjoys peaceful surroundings and a rare position that minimizes direct golf-ball activity while still offering sweeping views of the course. Step inside to an inviting layout where walls were thoughtfully removed and reconfigured to maximize natural light, enhance flow, and capture the lush fairway scenery. The study/third bedroom was opened to create an expansive feel and provide additional sightlines to the outdoors. The completely redesigned chef’s kitchen features white shaker cabinetry, stainless steel appliances, quartz countertops, and a walk-in pantry. A removed wall now connects the kitchen seamlessly to the dining area, offering generous space for entertaining and large gatherings—all while enjoying golf course views. The living room impresses with vaulted ceilings and wall-to-wall sliding doors that frame the picturesque landscape and open to the spacious patio. Wood-grain tile flooring flows throughout the home, with carpet in the master and secondary bedrooms for added comfort. Textured ceilings add a modern touch. Both bathrooms have been tastefully upgraded with newer cabinetry, quartz countertops, and stylish fixtures. All bedrooms include plantation shutters, mirrored wardrobe doors, and ceiling fans. The secondary bedroom also features a convenient built-in Murphy bed, making it ideal for guests or a flexible workspace. The expansive patio offers ample room for outdoor living and dining areas—perfect for relaxing while taking in the serene golf course views. The garage provides approximately 15 feet of multi-level shelving, durable epoxy flooring, and dedicated golf-cart parking. A rare combination of thoughtful design, high-quality upgrades, and a premier golf course setting—this home is the one you’ve been waiting for.

Map Location

Listing provided courtesy of Randy Horowitz of Century 21 Masters. Last updated 2025-12-13 09:12:57.000000. Listing information © 2025 CRMLS.

Quinten Sharp

Quinten Sharp

DRE# 00973844
Inquire Now
admin Real estate 9:00 AM - 5:00 PM 9:00 AM - 5:00 PM 9:00 AM - 5:00 PM 9:00 AM - 5:00 PM 9:00 AM - 6:00 PM 9:00 AM - 5:00 PM 9:00 AM - 5:00 PM https://static.royacdn.com/Site-39e808ae-cec3-4f41-bdc3-b18486385755/assets/QSharp.jpg Broker # # # https://static.royacdn.com/Site-39e808ae-cec3-4f41-bdc3-b18486385755/assets/QSharp.jpg