Property Detail

3776 Skyfarm

Santa Rosa CA 95403

$550,000

Status: Active

Property Details

Description

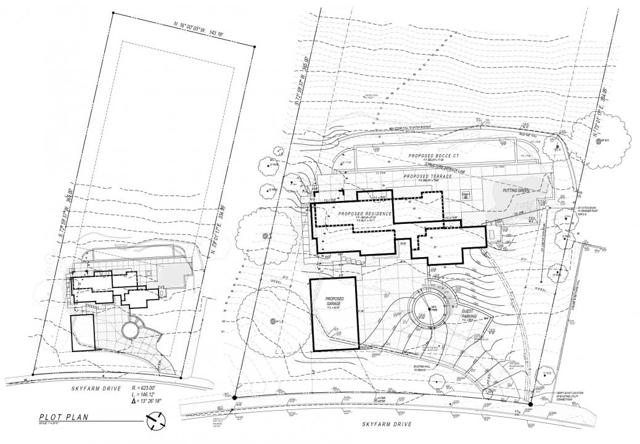
Amongst the rare estate lots left, this unique offering is positioned near the top of the highly desired Skyfarm Community, and provides far-reaching views. Sited high above Fountaingrove Golf Course, this picturesque lot provides incredible panoramic views of the Valley, Mountains, Green and Water below. For review are designs for a modern masterpiece (design review set), as well as a plan set for the original home, or bring your own creativity and design to this lot, amongst other customized options from local luxury homebuilders. This is a large and versatile lot, which has a substantial driveway with significant setback, and scope for a gate and estate-level of privacy.

Map Location

Listing provided courtesy of Kevin Gioia of Beycome Brokerage Realty Inc.. Last updated 2026-01-30 09:21:28.000000. Listing information © 2025 CRMLS.

Quinten Sharp

Quinten Sharp

DRE# 00973844
Inquire Now
admin Real estate 9:00 AM - 5:00 PM 9:00 AM - 5:00 PM 9:00 AM - 5:00 PM 9:00 AM - 5:00 PM 9:00 AM - 6:00 PM 9:00 AM - 5:00 PM 9:00 AM - 5:00 PM https://static.royacdn.com/Site-39e808ae-cec3-4f41-bdc3-b18486385755/assets/QSharp.jpg Broker # # # https://static.royacdn.com/Site-39e808ae-cec3-4f41-bdc3-b18486385755/assets/QSharp.jpg