Property Detail

23139 Erwin

Woodland Hills CA 91367

$12,558

Status: Active

Property Details

Description

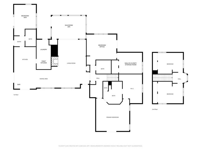
Stunningly remodeled & privately gated estate located on a sweeping 20,000+ SF corner lot in the highly desirable Walnut Acres neighborhood of Woodland Hills. Private security gates open to an expansive paver stone driveway that can accommodate parking for large gatherings. The property is surrounded by sprawling grounds for entertaining that include a resort-style swimming pool with built-in lounge seating, BBQ center with patio space for outdoor dining, glass enclosed sun room with jetted spa for ultimate relaxation, basketball/sports court, synthetic lawns for play, and low maintenance meticulous landscaping including olive trees & wrap-around privacy hedging. Completely reimagined interiors feature a mostly single level sunlit floor plan with incredible indoor/outdoor flow as every room has exterior access. The entry opens to a grand living room with vaulted ceiling, fireplace, and sitting nook with picture window. Gorgeous completely remodeled kitchen boasts center island with breakfast bar seating, quartz waterfall counters, gourmet stainless appliances including Fisher & Paykel refrigeration + Wolf range with 6-burner stove, plus additional “prep” kitchen with second sink & fridge, counter space with fantastic storage cabinetry, & separate laundry area with large capacity washer/dryer. The dining room seamlessly connects the kitchen & living room and has a custom bar with wine fridge. There are 5 spacious bedrooms, 3 located on the first floor, each with access to their own full bathrooms. The primary suite has a bedroom-sized walk-in closet with custom cabinetry & en-suite luxurious bathroom with dual sinks, stone counters, walk-in shower, & toilet room. A junior primary also functions as office with extensive custom built-ins, bedroom-sized storage room/walk-in closet & access to a full bath with dual sinks & walk-in shower. A third bedroom located on its own wing has access to a bathroom with tub/shower. Two secondary upstairs bedrooms each have built-in desks & custom closets. Additional features include: DoorBird intercom/controlled access, ADT security system, pre-wiring for cameras, Pella windows with custom motorized power shades, brand new roof & solar panels, automated exterior lighting, & abundant interior/exterior storage including an outdoor shed with lighting. Adjacent to dining/shopping at the Westfield Mall/Village, Calabasas Commons, local parks/hiking, & zoned for award-winning El Camino & Hale charter schools.

Map Location

Listing provided courtesy of Desiree Zuckerman of Rodeo Realty. Last updated 2026-05-06 08:22:44.000000. Listing information © 2025 CRMLS.

Quinten Sharp

Quinten Sharp

DRE# 00973844
Inquire Now
admin Real estate 9:00 AM - 5:00 PM 9:00 AM - 5:00 PM 9:00 AM - 5:00 PM 9:00 AM - 5:00 PM 9:00 AM - 6:00 PM 9:00 AM - 5:00 PM 9:00 AM - 5:00 PM https://static.royacdn.com/Site-39e808ae-cec3-4f41-bdc3-b18486385755/assets/QSharp.jpg Broker # # # https://static.royacdn.com/Site-39e808ae-cec3-4f41-bdc3-b18486385755/assets/QSharp.jpg