Property Detail

504 Church

Santa Maria CA 93454

$848,000

Status: Active

Property Details

Description

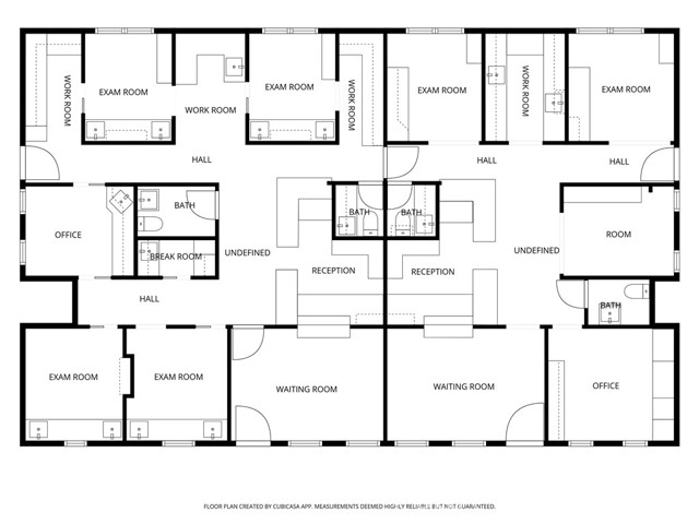
Prime Medical/Dental Office in Santa Maria 2340 SF Building on a 7,840 SF Lot | Two-Suite Configuration | Exceptional Location This charming 3,342 square foot professional office building is ideally situated on a 7,840 square foot lot in a highly visible corner location at 504 E Church Street in Santa Maria, California. Designed in the classic Entrada (Mission/Spanish Colonial Revival) architectural style that defines much of Santa Maria's character, the property features a welcoming stucco exterior with a distinctive red tile roof, abundant natural light from numerous windows, and a well-maintained, professional curb appeal. For decades, this building has been home to successful local dental practices. The larger suite (Suite A) has enjoyed a long-term, stable tenant with over 40 years of continuous occupancy, providing immediate income and proven demand. Suite B is currently vacant and ready for your personal touch--perfect for a new tenant or owner-user who wants to customize with paint and flooring of their choice. Flexible Layout & Expansion Potential Currently configured as two separate suites, each with its own reception/waiting areas, exam rooms, work rooms, and support spaces. The building currently offers seven operatory rooms for patient care (four in unit A and three in unit B), but with multiple offices, work rooms, lab areas, two more operatory suites would be an easy conversion for a total of nine operatory suites. Single-user conversion potential: By removing just one wall in the lobby area, the suites can be combined into one large, expansive practice--ideal for a growing dental or medical group. The attached detailed floor plans and 3D renderings illustrate the thoughtful layout and show how the space can be configured for various professional uses. Key Features & Upgrades Abundant natural light throughout thanks to generous windows. Recent upgrades to the building. Ample parking and easy access. Prominent signage opportunities with excellent street visibility. This is a rare opportunity to acquire a turnkey professional office with strong historical occupancy in a desirable Santa Maria location. The property offers potential for owner financing, making it accessible for qualified buyers looking to owner-occupy or expand their practice. See the attached high-resolution photos, floor plans, and 3D renderings for a complete view of the interior and exterior.

Map Location

Listing provided courtesy of Adam Pettit of Modern Broker. Last updated 2026-04-30 08:42:13.000000. Listing information © 2025 CRMLS.

Quinten Sharp

Quinten Sharp

DRE# 00973844
Inquire Now
admin Real estate 9:00 AM - 5:00 PM 9:00 AM - 5:00 PM 9:00 AM - 5:00 PM 9:00 AM - 5:00 PM 9:00 AM - 6:00 PM 9:00 AM - 5:00 PM 9:00 AM - 5:00 PM https://static.royacdn.com/Site-39e808ae-cec3-4f41-bdc3-b18486385755/assets/QSharp.jpg Broker # # # https://static.royacdn.com/Site-39e808ae-cec3-4f41-bdc3-b18486385755/assets/QSharp.jpg